Ladenfläche
2800 Delémont
Distanzen
Bahnhof516 m
ÖV169 m
Fläche
2'500 m²

Verfügbar abab sofort

Eckdaten
ObjekttypLadenfläche
Stockwerk/EtageEG
Dokumentation

Grosszügige Ladenfläche mit 2'500m2 - MParc Delemont

Diese grosszügige Ladenfläche befindet sich im Erdgeschoss des MParc Delemont mit einem spannenden Mietermix.

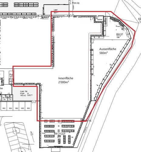
Mit 2'000 Innenfläche bietet die Fläche ideale Voraussetzungen für Ihr individuelles Ladenkonzept und gute Sichtbarkeit im Erdgeschoss. Weitere 580m² stehen im Aussenbereich zur Verfügung, davon sind 250m² gedeckt und 330m² frei. 

Die Fläche wird im Grundausbau vermietet und bietet somit maximale Flexibilität zur Umsetzung Ihres individuellen Geschäftskonzeptes.

 

Eckdaten:

  • 2‘000m² Innenfläche
  • 580m² Aussenfläche (250m² gedeckt, 330m² frei)
  • Ausreichend Kundenparkplätze direkt auf dem Gelände
  • Weitere Mieter: Media Markt, Ochsner Sport, Micasa

Die Liegenschaft befindet sich in strategisch günstiger Lage nahe der Autobahn A16. In direkter Umgebung befinden sich weiter Läden wie BlackOut, Müller Markt, GiFi, Dosenbach, Jysk und Fressnapf. 

Nehmen Sie jetzt Kontakt auf und realisieren Sie ihr Geschäft in bester Lage!

Kontakt

Dirk Hitzfeld

+41 61 545 03 35

Besichtigung
Bitte füllen Sie das Kontaktformular aus.
Jetzt Anmelden

Suchprofil erstellen

Nicht die passende Bürofläche für Sie dabei? Erstellen Sie jetzt Ihr Suchprofil.

Suchprofil erstellen